Trilocale in vendita

Valeggio Sul Mincio, Vicolo Belluno
€ 260.000
3 locali 3 locali
131 Mq 131 Mq
2 bagni 2 bagni

Trilocale in vendita

Valeggio Sul Mincio, Vicolo Belluno

Descrizione annuncio

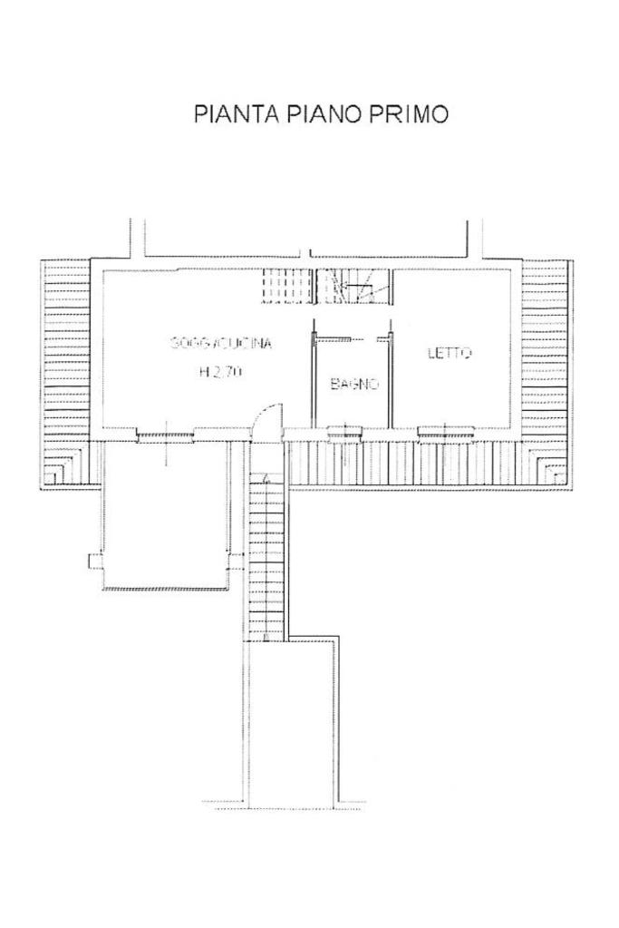
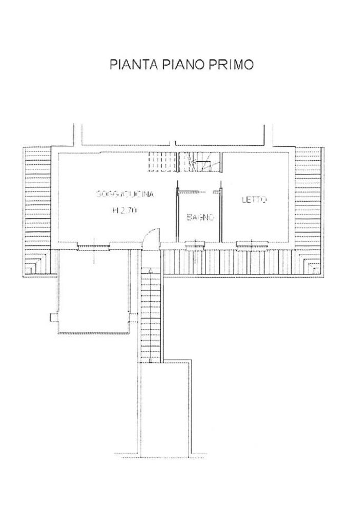
VALEGGIO SUL MINCIO - TRILOCALE SU DUE LIVELLI CON TERRAZZA

In una zona residenziale recente, tranquilla e comodissima al centro del paese, proponiamo in vendita un luminoso trilocale disposto su due livelli, con accesso indipendente e dotato di spazi generosi e ben organizzati.

Accesso e Piano Primo

L’ingresso avviene tramite una scala privata che conduce direttamente al piano primo, garantendo privacy e indipendenza.
All’interno troviamo:

Zona giorno ampia e luminosa, composta da soggiorno con angolo cottura, caratterizzata da grandi aperture che assicurano ottima luminosità durante tutto il giorno.Dal soggiorno si accede all’ampia terrazza abitabile, uno spazio esterno ideale per cene all’aperto.Camera matrimoniale dalle metrature comode e ben sfruttabili.Bagno finestrato con box doccia, rifinito con materiali moderni e dotato di aerazione naturale.

Piano Mansardato

Salendo al piano superiore troviamo una mansarda molto spaziosa, completamente rifinita e già dotata di:

Un unico ambiente ampio che permette di ricavare due camere da letto, grazie alla generosa altezza e alla distribuzione degli spazi.Un secondo bagno finestrato con doccia, che rende il piano autonomo e funzionale anche per una famiglia numerosa.

Autorimesse

A completamento dell’immobile sono presenti:

Un garage singolo, ideale per auto o per uso deposito.Un garage doppio, perfetto per chi necessita di ulteriore spazio per due auto, moto o attrezzature.
Mostra tutto

Nelle vicinanze

Trasporto pubblico Trasporto pubblico
Trasporto pubblico
470 m
Ricariche auto elettriche Ricariche auto elettriche
HOTEL RISTORANTE EDEN
970 m
Scuole Scuole
IPSAR Carnacina area di pertinenza.
310 m
Scuole medie Statali Valeggio
560 m
Scuole
940 m
Scuola primaria statale Carlo Collodi
950 m
Scuola dell'infanzia Statale
1,3 Km
Farmacia Farmacia
Farmacia
660 m
Farmacia Perina
1,3 Km
Ospedali Ospedali
Centro polifunzionale di Valeggio sul Mincio - ULS22
320 m
Supermercati Supermercati
Italmark
300 m
Famila
670 m
Supermercato Famila
680 m
Eurospin
800 m
Fornari
900 m
Negozi Negozi
Benini
810 m
Bar Bar
Pamy
660 m
Bar
720 m
Angel Bar
730 m
Chiosco - Bar
750 m
Tre Molini
950 m
Ristoranti Ristoranti
Pizza d'asporto Happy pizza
370 m
Spizzati
510 m
Ristorante Sigurtà
660 m
Bar Trattoria Il Cavallino
740 m
Bar Pizzeria Gelateria Galetto
790 m
Mostra tutto

Caratteristiche

Rif.:
61141830
Piano:
1 di 3 (Piano su più livelli)
Box:
2
Posti auto:
3
Terrazzi:
1
Camere da letto:
2
Mostra tutto
Prezzo Prezzo
€ 260.000
Rata mutuo Rata mutuo
€ 1.227 / mese
Proponi il tuo prezzoProponi il tuo prezzo
Immobile valutato con T·Valuta

Classe Energetica

D
D
D
D
D
D
D
D
D
EP invernale del fabbricato:
EP estiva del fabbricato:
Anno di costruzione:
2007
Riscaldamento:
Autonomo
Tipo impianto:
A radiatori
Tipo alimentazione:
Metano

Ti interessa visionare l'immobile?

Fissa un appuntamento  Fissa un appuntamento

Richiedi informazioni

Clicca su Leggi per aprire l'informativa
* Questi campi sono obbligatori

Calcola il tuo mutuo

Semplice e senza impegno
Anticipo

( % )
Mutuo

( % )

pochi semplici passi

inserisci i tuoi dati
Questionario completato
Grazie per aver richiesto un appuntamento senza impegno con un nostro Consulente del Credito e Assicurativo.

Hai inserito correttamente tutti i dati necessari e a breve riceverai una e-mail con un link da convalidare per inviare i tuoi dati.
Affiliato
New Castle Sas
P.zza San Rocco, 17 37067 Valeggio Sul Mincio (VR)

Il nostro staff


  • Roberto Cosaro
    Affiliato

  • Lorena Elena Balauca
    Collaboratrice

  • Giulia Benati
    Responsabile

  • Oumaima Chadli
    Collaboratrice

  • Anna Moschini
    Coordinatrice
P.zza San Rocco, 17 37067 Valeggio Sul Mincio (VR)
Zona: Valeggio sul Mincio-Salionze-Borghetto
Mostra su mappa
Affiliato
New Castle Sas
P.zza San Rocco, 17 37067 Valeggio Sul Mincio (VR)

2025 Tecnocasa Franchising S.p.A. - P. IVA 08365160152 - Via Monte Bianco 60/A 20089 Rozzano (MI). Ogni agenzia ha un proprio titolare ed è autonoma. Privacy policy | Policy utilizzo | Cookie policy